Wyjątkowa oferta-15 min od Mińska Mazowieckiego
Szczegóły
Opis
Prezentowana nieruchomość znajduje się w miejscowości Turek oddalonej o 15 min jazdy samochodem od Mińska Mazowieckiego. To zielona okolica idealna dla rodziny szukającej spokoju i przestrzeni na codzień.
Oferta składa się z dwóch nieruchomości, jedną z nich jest teren gospodarczy zabudowany halami o powierzchni ok 600m² obecnie przystosowanymi do naprawy samochodów osobowych.
Oraz budynek biurowy z cześcią socjalną dla pracowników o powierzchni ok 120m2. Istnieje oczywiście możliwość prowadzenia w nich innego rodzaju działaności lub wynajęcia i zapewnia stałego dochodu z najmu.
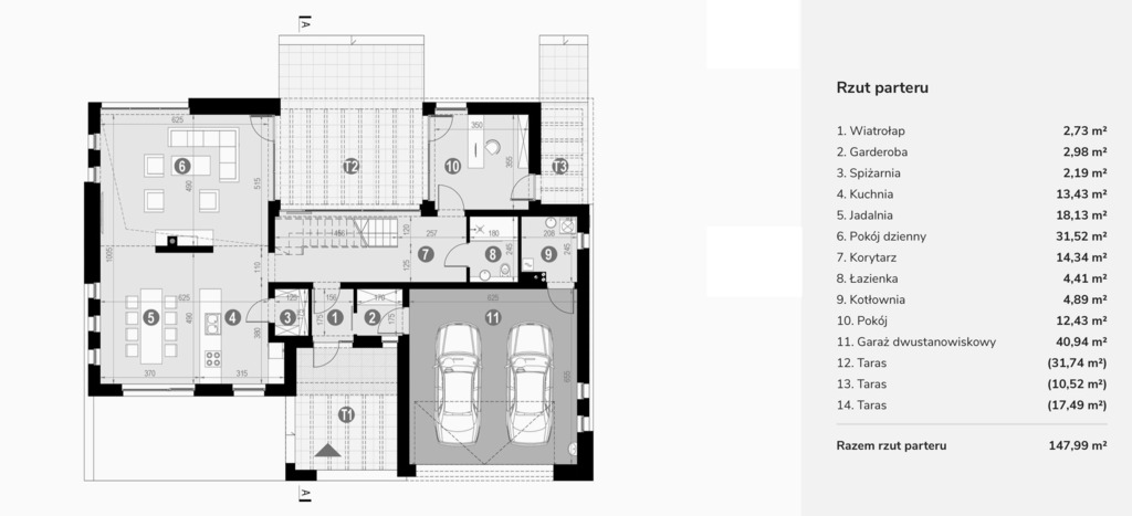
Na drugiej części działki znajduję się przestronny nowoczesny dom o powierzchni blisko 200m² .
Budynek jest nowy i zamieszkały od 2020r. To renomowany projekt HomeKoncept 13EN idealny dla rodziny, która stawia na przestrzeń i wygodę w codziennym użytkowaniu.
Sercem projektu jest przestronny salon wyposażony w kominek, uwagę zwraca rownież wysokość ok 5m. Całość idealnie komponuje się z otwartą kuchnią i jadalnią.
Na parterze mamy rownież dostęp do gabinetu, który doskonale sprawdzi się jako pokój gościnny, oraz przestronną łazienkę. Całość wykonana jest z najwyższej jakości materiałów co widać odrazu po przekroczeniu progu.
Na piętro prowadzą schody wykończone drewnem gdzie mamy dwie sypialnie o powierzchni ok 12m² , które obecnie są pokojami dla dzieci, oraz główną sypialnie z osobną łazienką mierzącą łącznie ok 26m² . do każdej sypialni przynależy garderoba.
Na tym piętrze mamy rownież wyjście na duży taras z pięknym widokiem na ogród.
Cała nieruchomość robi wyjątkowe wrażenie, otoczona jest zadbanym ogrodem mierzącym ponad 3000m² . W chłodne wieczory znajdziemy w nim miejsce na zorganizowanie spotkania przy ognisku.
Dom spełnia wszystkie najnowsze normy budowlane, jest w pełni klimatyzowany i wyposażony w fotowoltaikę.
Informacje techniczne:
-Dom ogrzewany jest piecem gazowym
-Budynki gospodarcze ogrzewane nadmuchowym piecem na ekogroszek.
-Wodociąg
-Przydomowa oczyszczania ścieków.
-Internet
-Prąd + siła
Dojazd do Warszawy zajmuje ok 50 minut.
Na obecną chwilę nie wymaga najmniejszych nakładów finansowych.
Jeśli zainteresowała Cie oferta zadzwoń i uzyskaj więcej informacji.
Dariusz Czajka 883027007

