

Warszawa, Bemowo- na sprzedaż 3 pokojowe, ustawne mieszkanie z dużym potencjałem.
Świetna oferta dla osób, dla których ważne jest połączenie dobrej lokalizacji pod kątem komunikacyjnym z jednoczesnym przyjemnym miejscem do mieszkania w otoczeniu zieleni. Tutaj to znajdziesz! Zapraszam do zapoznania się ze szczegółami oferty.
Mieszkanie o powierzchni ok. 65 m2 położone jest w bloku z 1991 roku przy ul. Wolfkego 9. Lokal usytuowany jest na 2 piętrze w 4 piętrowym budynku bez windy. Blok kameralny, tylko jedna klatka, zadbany, w dobrej kondycji technicznej. Zielone tereny na osiedlu, duże odległości do sąsiadujących bloków oraz mnogość ogólnodostępnych miejsc postojowych to niewątpliwe atuty położenia tej nieruchomości.
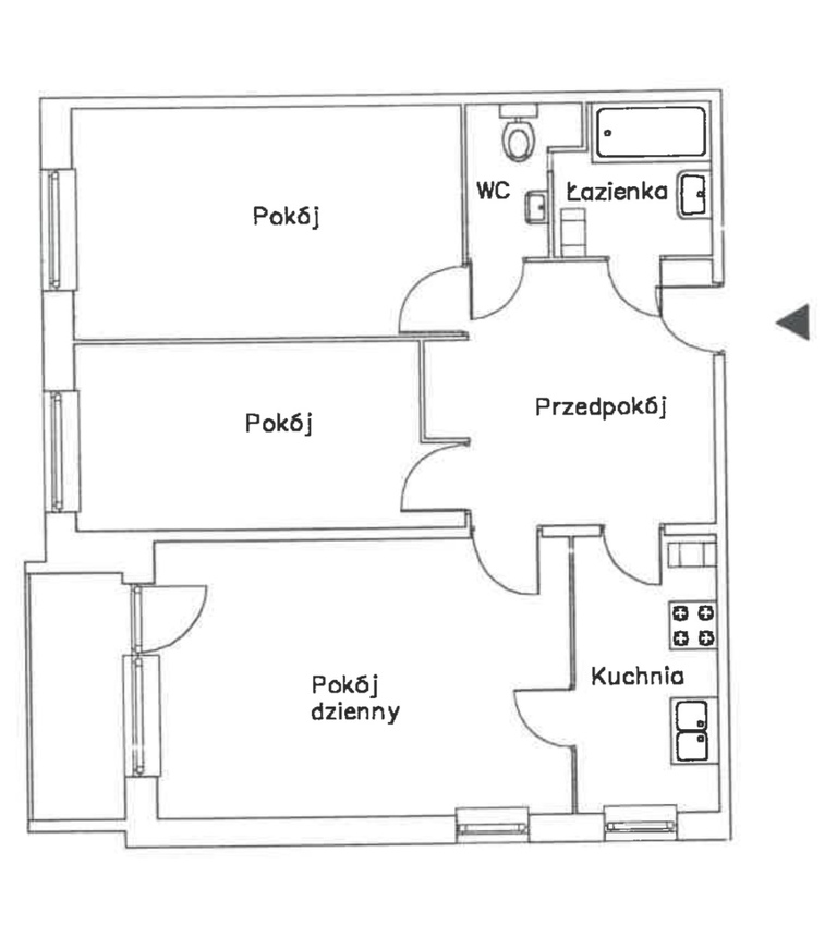
Na powierzchni ok.65 m2 zostały wygospodarowane:
- przestronny przedpokój zabudowany dużą ilością szaf
- łazienka z wanną
- oddzielne WC
- salon połączony z kuchnią- w pierwotnym układzie kuchnia była oddzielnym pomieszczeniem, można wrócić do tego stanu - rzut załączony w galerii zdjęć
- 2 sypialnie
- balkon
Stan prawny: pełna własność z Księgą wieczystą (można kredytować zakup)
Czynsz: ok. 760 zł
ATUTY NIERUCHOMOŚCI
- funkcjonalny rozkład mieszkania z dużym potencjałem aranżacyjnym
- zielona okolica- drzewa widoczne z okien każdego pomieszczenia
- przynależna piwnica ok. 3,6 m2 (w cenie)
- w pobliżu pełna infrastruktura: sklepy, centrum handlowe, szkoła, pływania, przychodnia medyczna
- dobry punkt komunikacyjny- 5 min piechotą do przystanku tramwajowego i autobusowego
Jeśli zainteresowała Cię ta nieruchomość, to zapraszam do kontaktu i umówienia się na prezentację.
Polecam,
Joanna Stojanowska